Skip to main content

* Visuals shown for guidance only.

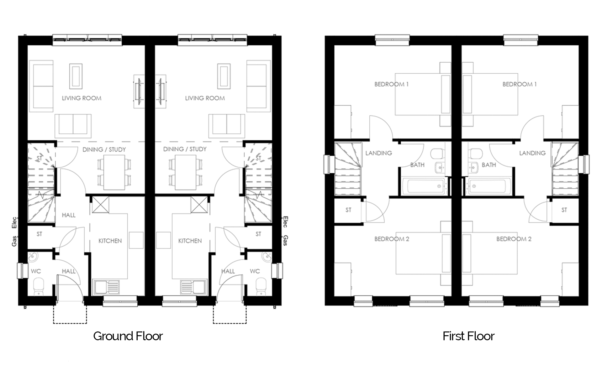
The Acorn

Two bed semi-detached

Two bed semi-detached

The ground floor design of The Acorn allows for large, bright, living spaces to include the kitchen, dining and living areas. With double doors to the rear of the property creating a seamless transition into the garden, maximising the flow from inside to out. First floor comprises of two bedrooms and family bathroom.

Floor plans

Take the tour

Watch the walk through